스마트 엔지니어링
Smart Engineering
DASDrawing Automation System
철골 부재 제작도 자동생성시스템
DAS는 Tekla를 이용한 철골구조물 제작도 업무 중 가장 많은 시간과 인력이 들어가는 도면편집 작업을 자동화하기 위하여 개발되었습니다.

철골제작도 생성과정의 모든 도면편집 작업을 자동화 함으로써 도면편집 시간을 줄이고, 도면편집 스타일을 표준화하여 완벽한 도면품질과 신뢰성을 보장합니다.
주요기능
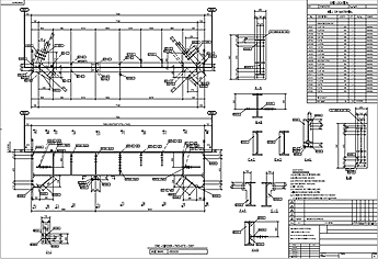
  • Tekla Structures에서 생성한 3차원 철골모델을 이용하여 제작도면으로 자동편집함
    (Tekla Addon 프로그램)
  • Tekla Structures 버전 17.0부터 2021까지 지원함
  • 지원하는 도면타입
    단품도면
    - Member Type : Straight Beam, Poly Beam, Curve Beam, Plate
    - Member Profile : H-shape, L-shape, C-shape, Channel, T-shape, Rectangular, Round bar
    제작도면
    - Column, Beam/Girder, Brace, Handrail, Stair, Ladder, Grating, Truss, Frame, Purlin, Girth, Sag rods
    설치도면
    - Column Arrange, Main Plan, Main Elevation, Misc Plan, Finish Plan, Finish Elevation, Stair Plan, Stair Elevation
  • 사용자 중심의 쉽고 효율적인 입력
    Tekla의 복잡한 도면설정을 쉽고 빠르게 설정 할 수 있습니다.
  • 강력한 치수선 스타일 커스터마이징 기능
    사용자만의 치수선 스타일을 생성하여 자동 편집할 수 있습니다.
  • 단면도(Section View)자동생성 및 자동편집
    DAS의 자체알고리즘을 통해 단면도를 생성하고 자동 편집할 수 있습니다.
산출물
  • Girder
  • Column
  • Handrail
  • Stair
도입효과
단품도면 : 1000장 / 제작도면 : 300장 / 설치도면 : 100장
Tekla Structures를 더욱 쉽고 간단하게 사용
  • DAS가 제공하는 편집 및 보조도구 기능으로 Tekla Structures를 더욱 쉽고 간단하게 사용
  • 현재 진행중인 공사에도 바로 적용 가능
  • 기존 편집방식 대비 50% 작업 M/H 절감효과
  • 개인별 도면 편집수준의 일관화 및 성과품의 표준화
  • 1일 1PC 기준 도면별 자동편집량
도입업체
25
국내 도입업체 거목엔지니어링, 동양메닉스, 대성CP, 대원산업, (주)동부플랜트, 로뎀개발, 롯데기공, 민엔지니어링, 맥스틸, 범일, 성민엔지니어링, 선엔지니어링, 신성이앤피, 세강엔지니어링, 세기강업, 세진설계, 쓰리에스엔지니어링, 영일엔지니어링, 익성플랜트, 유림이엔씨, (주)엔에스텍엔지니어링, 예진이엔지, 포스코플랜텍, 케이테크 코리아, 하늘엔지니어링, 한독기술, 한림에스이지, BS-ENG, DSTech, 기타 개인업체
13
중국 도입업체 Qing da fu xiao, Daizo, Yi jie hong feng, Shanghai Ri Shan International Trading, Zhongtong Steel Structure, Shanghai I-BEAM Architecture, Huisheng(Wison), Qing Dao Hao Yu, GuoQiang Steel Structure, Yantai Daizo Structure, Yantai Panxin, PJOE, NR Asso
10
일본 도입업체 PAL, Yamaguchi seisakusho, Sanei, kitani, 히라이기술연구소, WATANABE, KONDO, WATAHAN, Kubokougyou, GENKOTEKKOU
02
인도 도입업체 Prothious Engineering servicse, Cistron Infotek Private Limited
01
베트남 도입업체 DOOSAN VINA
상용 소프트웨어
eSDI
플랜트 철골구조물 3차원 설계자동화 시스템
DAS
철골 부재 제작도 자동생성시스템
RAS
철골 부재 설계변경 관리시스템
JAS
철골 부재 설계변경 관리시스템
Smart IFC Compare
IFC 모델 비교 검토 시스템